Extension et rénovation d'un pavillon années 30
Un bel espace à vivre
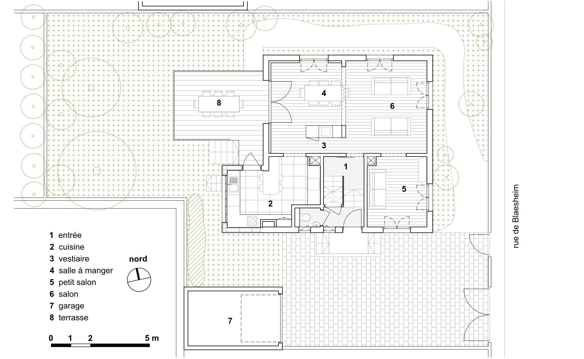
Après plusieurs années d'occupation, le rez-de-chaussée de la maison est reconfiguré et doté d'une terrasse.
Les propriétaires souhaitaient une maison colorée et rajeunie, avec une cuisine fonctionnelle et un grand séjour.
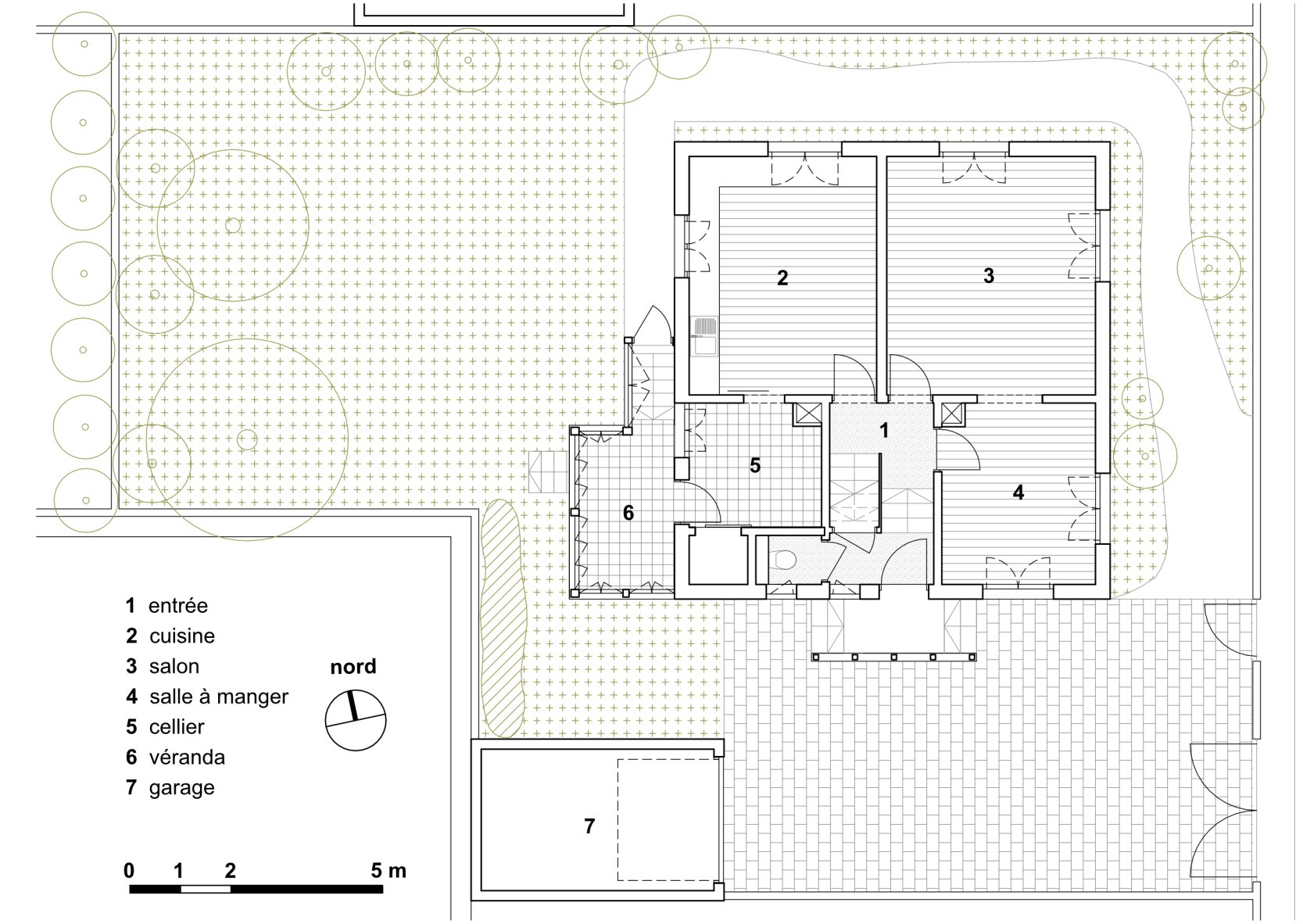
Cette famille avec deux enfants a acquis une maison des années 30 avec un terrain de 5 ares environ dans les environs de Strasbourg. Après quelques années passées, le rez-de-chaussée de 75 m² pose plusieurs problèmes : la cuisine est trop grande, le salon est exigu, les pièces de vie sont coupées du jardin. L’espace véranda n’est pas exploité et il manque un vestiaire à côté de l’entrée. Enfin, les clients souhaitent recevoir en grand nombre pour des fêtes de famille.
Ils s’adressent au CAUE du Bas-Rhin fin d’exposer leur projet et, par leur intermédiaire, de rencontrer des architectes intéressés et compétents pour ce projet. Nous sommes retenus. Les études et le chantier seront réalisés en 2019 par Renaud Schwartz et Fanny Bulliot.
Ouvrir la maison sur le jardin
La cuisine est déplacée en place du cellier et de la véranda. Le salon s’agrandit sur l’espace de la cuisine et s’ouvre sur la terrasse de 18 m².
La cuisine prend place dans le volume de la véranda : les règles du PLU empêche d’agrandir ce volume qui est démoli et reconstruit à l’identique. Les plans de travail et les rangements s’organisent autour d’une table pour les repas du quotidien. Une large baie de type verrière ouvre sur le jardin, elle est doublée d’une porte-fenêtre menant à la terrasse. La précédente cuisine laisse place à un grand séjour traversant, orienté d'Est en Ouest, et ouvert sur la terrasse. Le petit salon est conservé et aménagé pour la projection de films.
Du mobilier sur mesure pour une maison colorée et chaleureuse
L’ambiance des intérieurs est à l’image des clients dont le goût très sûr et le mobilier apportent de l’élégance au projet : camaïeu de bleus, mobilier scandinave, tableaux et objets de décoration.
Un vestiaire est créé dans la pièce de vie, côté entrée. Il crée un passage rapide vers la cuisine et permet de distinguer l’espace salle à manger dans la pièce de vie. Les niches et le banc ouvert au travers du meuble apportent une touche ludique à ce meuble avant tout utilitaire.
Les couleurs vives des peinture s'accordent bien au plancher bois rénové, aux carrelages existants, et de pièce en pièce, elles créent une ambiance joyeuse et chaleureuse.












