Rénovation d’un appartement début XXe
Un bel espace à vivre
Le projet consiste en la rénovation complète d’un appartement situé dans le quartier Gare de Strasbourg.
Les propriétaires souhaitaient un appartement lumineux, coloré et chaleureux.
Un jeune couple avec enfant acquiert un appartement de 120 m² au premier étage d’un immeuble de 1910 à Strasbourg. Le logement demande une rénovation complète : la réorganisation des espaces, le remplacement des réseaux et la rénovation de toutes les surfaces (murs, sols et plafonds).
Le maître d’ouvrage souhaite conserver ce qui fait le cachet de l’appartement : parquet chêne, plancher en pin rouge, boiseries, rosaces et moulures aux plafonds.
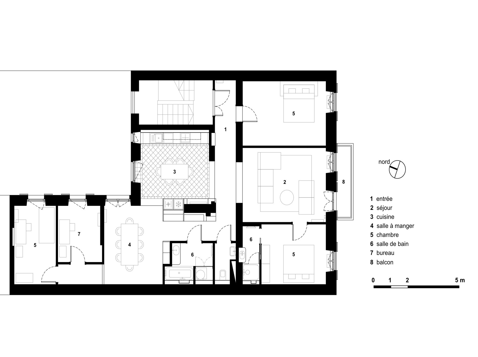
Précédemment, le logement a été remanié. Il en résulte plus de 20 m² de couloir, une organisation des pièces complexe et un manque de lumière naturelle. Le projet débute par la démolition des aménagements de la précédente rénovation.
Côté rue, l’ordonnancement d’origine des trois pièces de vie est retrouvé : chambre d’amis face à l’entrée, séjour en partie centrale, et chambre parentale avec sa salle d’eau. Le séjour s’ouvre sur la cuisine et la salle à manger, qui s’articulent autour d’un grand meuble central. Derrière celui-ci, un dégagement secondaire dessert la salle de bains et les sanitaires. Enfin, une chambre d’enfants et un bureau sont installés à bonne distance des pièces de vie.
L’appartement gagne en lumière naturelle, des perspectives sont créées entre la salle à manger, la cuisine et le séjour. Des meubles sur mesure apportent les volumes de rangement utiles à la famille : niche décorative avec dépose clefs à l’entrée, bibliothèque suspendue dans le séjour, meuble central avec éléments de cuisine et armoires, vaisselier et étagères dans la salle-à-manger.
Une décoration alliant ancien et contemporain
Pour les ambiances, nous sommes partis des pré-choix du maître d’ouvrage qui souhaitait des couleurs vives par touches (carrelage, mosaïques, peinture), la mise en valeur des boiseries et des parquets et un rendu général qui ne les enferme pas dans un style trop déterminé.
Ainsi, l’appartement présente une palette restreinte de matériaux, dans des teintes miel, blanc, jaune et beige. Des touches de bleu foncé sont ajoutés en contraste par le mobilier sur mesure. L’appartement gagne en clarté et son ambiance est chaleureuse.














