Pôle de compétences dans une maison alsacienne
Créer un espace de travail en coeur de village
Une ferme alsacienne comme opportunité d'établissement d'un pôle de compétences dédié à la construction durable.
Le maître d’ouvrage a acquis une ferme alsacienne en cœur de village pour y établir son domicile personnel et installer dans une dépendance, un pôle de compétence en construction durable et transition énergétique.
Il fait appel à AMI Architectes pour une mission en deux temps, la première est une demande d’analyse du projet de rénovation de la dépendance en vue des démarches administratives (permis de construire, demande de subventions). La seconde est une mission d’agencement intérieur précisant le projet architectural : conseil sur le volet environnemental, conception de mobilier sur mesure, prescription de mobilier et de luminaires du commerce.
Ce projet s’est déroulé dans un dialogue étroit avec le maître d’ouvrage afin de lui apporter nos meilleurs conseils pour l’aménagement du pôle de compétences. L’enjeu est ici de créer un espace de travail attractif pour l’accueil de professions libérales du domaine de la construction et de donner les bases d’une synergie entre professionnels. La qualité de cet espace et son niveau d’équipement sont indispensables à la réussite du projet.
La rénovation de la maison alsacienne, première étape de la transformation
Assainissement et rénovation thermique de la dépendance
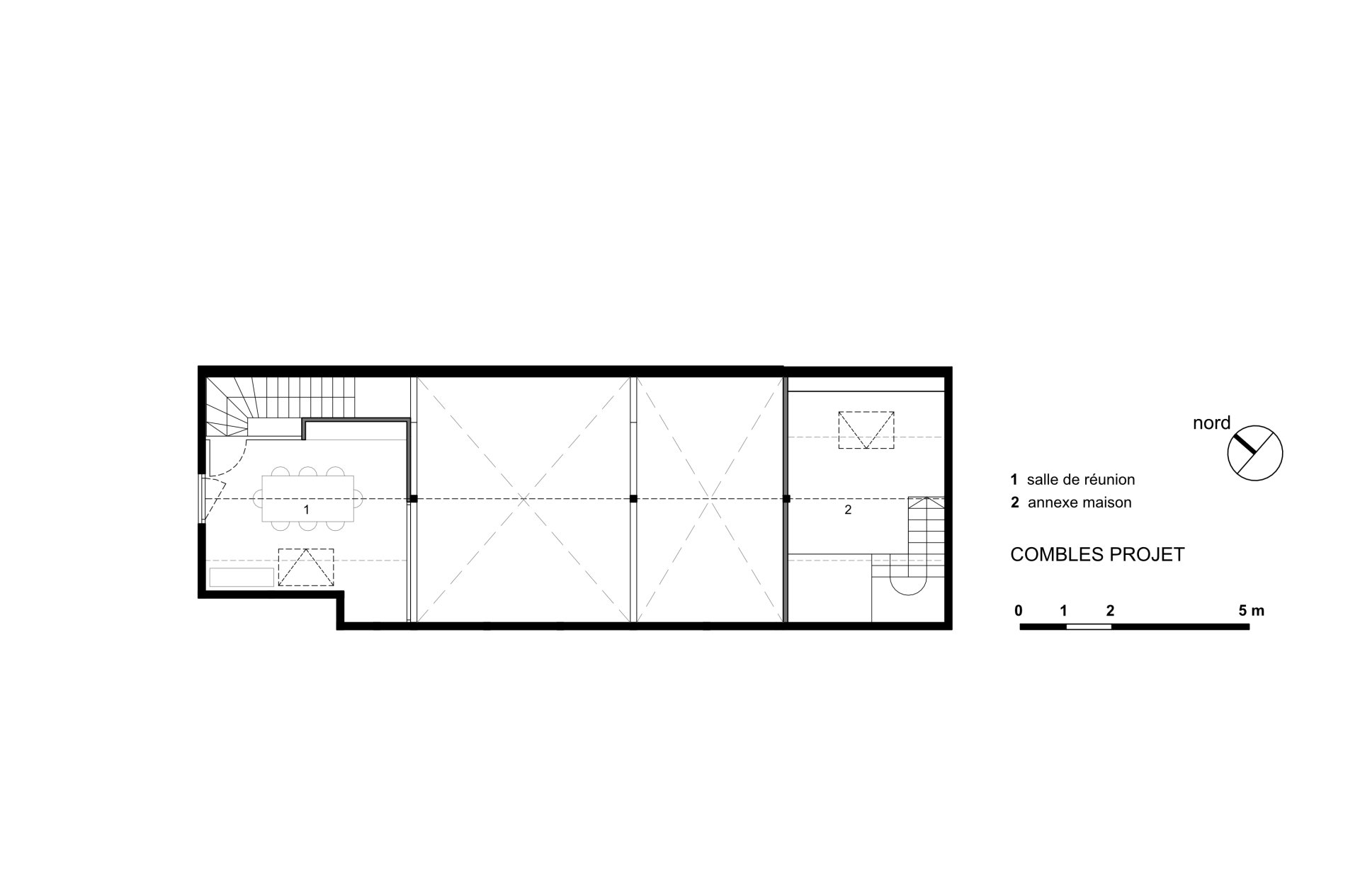
La dépendance est un ancien bâtiment agricole abritant une étable à rez-de-chaussée et du stockage dans le comble. Elle est complètement rénovée afin d’accueillir à rez-de-chaussée les espaces partagés (cuisine, salon, sanitaires), la salle de travail avec 8 postes et local reprographie au premier étage, et enfin, en mezzanine, une salle de réunion.
Les façades de la dépendance sont traitées et isolées. Les portes existantes sont vitrées pour plus de lumière naturelle dans le bâtiment. La partition d’origine du bâtiment, entre pierres à rez-de-chaussée et pans de bois à l’étage, est respectée par la distinction des menuiseries (aluminium laqué à rdc et bois à l’étage), par le traitement des ouvertures (larges à rdc et étroites à l’étage). Les enduits à la chaux sont dans les teintes traditionnelles, blanc et brun-rouge, en accord avec les matériaux en place à rénover : grès des Vosges, tuile écaille plate brun-rouge flammée, égouts et descentes d’eaux pluviales en zinc, colombages en bois massif.
Enfin, le projet s’accompagne d’un projet paysager sur la cour de ferme qui change de statut par la création du pôle de compétences. S’y organisent les 5 places de stationnement, le cheminement piéton depuis la rue et une terrasse en bois devant la baie coulissante à rez-de-chaussée. Des plantations sont prévues pour faire écran à la rue à l’entrée de la cour et au fond pour recueillir les eaux de ruissellement par infiltration.
Le pôle de compétences a ouvert à l'automne 2021.
Vous souhaitez voir d'autres réalisations ?










